育児パパ

平屋の間取りで意識したこと

子育てしやすさを最優先にした我が家の設計

■目次

• 間取りで一番意識したこと

• キッチン中心の間取りにした理由

• 回遊動線で生活を完結させる

• 実際に住んで感じたメリット

• 正直なデメリット

• 間取りづくりで後悔しないためにやったこと

• まとめ

■間取りで一番意識したこと

間取りで一番意識したことは、

👉 子育てのしやすさです。

これは家づくりの中で、絶対に譲れないポイントでした。

そのため、

👉「どうすれば子育てしやすい家になるか」

この軸をもとに、設計士さんと一緒に間取りを考えていきました。

■キッチン中心の間取りにした理由

結論として我が家は、

👉 キッチンを家の中心に置く間取りにしました。

理由はシンプルで、

👉 キッチンに立つ時間が一番長いからです。

料理や家事をしながらでも、

👉 子どもの様子が常に見える

これを最優先に考えました。

具体的には、

• アイランドキッチンにして壁をなくす

• リビング+和室をキッチン横に配置

これにより、

👉 顔を上げるだけで子どもが見える

さらに、

• キッチンからお風呂・トイレが見える配置

• キッチンの後ろに寝室

👉 右を向けば水回り、後ろには寝室

という形で、

👉 家のすべてがキッチン起点で把握できる間取り

にしています。

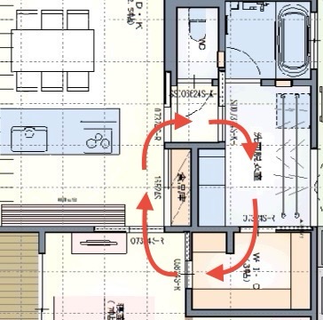
■回遊動線で生活を完結させる

もう一つ意識したのが、

👉 回遊動線(ぐるっと回れる動線)

です。

平屋のメリットを活かして、

👉 廊下をできるだけなくし

👉 生活スペースを広く確保

そのうえで、

👉 生活が一筆書きのように繋がる動線

を作りました。

例えば、

• クローゼットで着替えを取る

• そのまま洗面所で着替え・顔を洗う

• リビングに戻る

👉 子どもが自分で生活できる動線

になっています。

これも実際に暮らしてみて、

👉 かなり大きなメリットだと感じています。

■実際に住んで感じたメリット

この間取りにしてよかったと感じるのは、

👉 とにかく“距離が近い”こと

現在、2歳と4歳の子どもを育てていますが、

例えば、

お風呂に入っているときも、

👉 様子を見ながら家事ができる

洗面所で洗濯物を畳んだり、

キッチンも近いので行き来できます。

👉 日常の動きの中で自然と見守れる距離感

また、

👉 何かあってもすぐに駆けつけられる距離

この「距離の近さ」は、子育てをする上で大きな安心感につながっています。

■正直なデメリット

一方でデメリットもあります。

👉 生活動線が密集していることによる音問題

これは前回の記事でも書きましたが、

👉 音はやはり多少聞こえます。

また間取りで最後まで悩んだのが、

👉 トイレの位置

でした。

• 玄関側にするか

• リビング横にするか

我が家は最終的に、

👉 子育てのしやすさを優先してリビング横に配置

しました。

その際に気になったのが、

👉 トイレの音問題

ですが実際は、

👉 扉を2枚挟むことで、音はほとんど気になりません。

• トイレの扉

• リビングとの間の引き戸

👉 この2つがあるだけで、

👉 生活への影響はほぼありませんでした。

■間取りづくりで後悔しないためにやったこと

間取りを決めていく中で、正直一番悩んだのが打ち合わせでした。

我が家の場合、

👉 週1回〜2週間に1回のペースで設計士さんと打ち合わせ

その中で、紙の図面をもとに間取りを作っていきました。

ただ、この「紙の図面」というのが意外と難しくて、

• ここをこうしたい

• こういう動線にできないか

といったことをその場で考えて伝えるのですが、

👉 何度も修正してもらううちに、だんだん言いづらくなってきます。

• 何度も消しゴムで直してもらう申し訳なさ

• これ以上言うのは悪いかなという気持ち

結果として、

👉 「まあこれでいいか」と妥協してしまいそうになる

実際、打ち合わせの帰りには、

👉 「これで良かったのかな…」

と感じることもありました。

そこで我が家がやったのが、

👉 自分たちで間取りを作ること

間取り作成アプリを使って、

• 何度でも

• 細かい部分まで

👉 自分たちで納得いくまで作り直しました。

紙の図面と違って、

👉 どれだけ修正しても気を遣う必要がない

これがすごく大きかったです。

そして、

👉 自分たちで考えた間取りを設計士さんに見てもらい、

• ここはこうした方がよい

• これは構造的に難しい

    

といったアドバイスをもらいながら、最終形にしていきました。

その結果、

👉 「なんとなく決めた間取り」ではなく、

👉 自分たちで考え抜いて納得した間取り

にすることができました。

これは家づくりの中でも、

👉 やってよかったことの一つだと感じています。

■最後に

我が家の間取りは、

👉 子育てのしやすさを最優先に設計しました。

• キッチン中心の配置

• 回遊動線

• 距離の近さ

これらを意識することで、

👉 家事と育児が両立しやすい家

になったと感じています。

もちろん、

👉 音やプライバシーといった課題はありますが、

それ以上に、

👉 子育てのしやすさというメリットが大きい

そう感じています。

-育児パパ