育児パパ

【後悔しない間取り】やってよかった間取り3つ|子育てしやすい家の結論

はじめに

注文住宅で一番悩むのが、間取りです。

我が家は「子育てしやすい家」をコンセプトに設計しました。

現在は、4歳と2歳の子どもを育てながら暮らしています。

2年住んでみて感じるのは、
「間取りで暮らしはかなり変わる」ということです。

今回は、実際にやってよかった間取りを3つに絞って紹介します。

第1位:キッチン中心で全部見渡せる配置

【写真:リビングから見たキッチン】

これは圧倒的に1位です。

我が家のキッチンの配置はこんな感じです。

・正面 → リビング&和室(子どもスペース)
・左 → 庭(大開口でつながる)
・右 → 洗面・お風呂・トイレ
・背面 → 寝室

キッチンに立てば、家の中の様子が一通り見える配置にしています。

さらに、完全に見えなくても
「気配で分かる距離感」にしているのがポイントです。

料理をしながら子どもを見る、
庭で遊んでいても確認できる、
お風呂やトイレの様子も分かる。

この「見える+分かる」があることで、安心感がまったく違います。

これは本当にやってよかったと感じている間取りです。

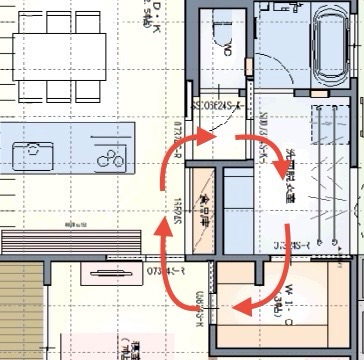
第2位:回遊動線(ぐるっと一周できる間取り)

【写真:我が家の回遊動線】

我が家は、家の中を一周できる動線にしています。

リビング
→ 洗面・お風呂
→ ランドリー
→ ウォークインクローゼット
→ 寝室
→ リビング

すべてがつながっています。

この動線のメリットは大きく2つあります。

家事がとにかくラク

洗濯 → 干す → しまう
この流れがスムーズになります。

子どもが自分で動ける(将来的な期待)

服・タオル・お風呂が全部近いので、

朝は、着替え → 洗面 → リビング
夜は、お風呂 → 着替え → 寝室

といった流れが自然にできる動線になっています。

ただ正直なところ、

今はまだ親が声をかけないと動かないことも多く、
自由に動き回っていることも多いです。

それでも、

「自分でできる流れ」があることで、
少しずつ習慣づいていくのではないか

そんな期待も込めて、この動線にしています。

共働き×子育ての家庭にはかなり相性がいいと感じています。

第3位:生活空間と分けた子ども部屋(将来を見据えた配置)

これは少し特徴的な配置です。

我が家は、子ども部屋を生活空間と分けて配置しています。
(玄関を挟んで反対側)

ただし現在は、まだ子ども部屋としては使っていません。

今は、

・来客用の部屋
・一人になりたい時の場所

として使っています。

良かった点

音とプライバシーが確保できることです。

生活音が届きにくく、
一人の時間も作りやすい。

平屋の弱点をカバーできる配置だと感じています。

また、来客時にも使いやすく、
今の使い方としても満足しています。

将来的に気になる点

一方で、将来子どもが部屋を使うようになったとき、

リビングを通らずに部屋に行けるため、
帰宅が分かりにくくなる可能性があります。

コミュニケーションの取り方については、
少し気になる部分ではあります。

ただ、これはこれから先の話でまだ未知数です。

「今のメリット」と「将来の不安」は分けて考える必要があると感じています。

まとめ

我が家が実際にやってよかった間取りはこの3つです。

・キッチン中心で見渡せる配置
・回遊動線で全部つながる
・プライベート空間を分ける

この3つを意識したことで、
家事も育児もかなりラクになりました。

最後に

間取りで大事だと感じたのは、
「広さ」より「つながり」です。

これが暮らしやすさを大きく左右します。

なお、なぜこの間取りにしたのか、
実際の生活動線や細かい工夫については、
こちらの記事で詳しくまとめています。

平屋の間取りで意識したこと

気になる方はぜひ参考にしてみてください。

-育児パパ