育児パパ

平屋にしてよかった? 2年住んで感じたメリット・デメリット

■我が家が平屋にした理由

そもそも我が家が平屋を選んだ理由は、大きく2つあります。

・平屋への憧れ

・子育てのしやすさ

この2つを両方満たせるのが、平屋でした。

また、この点については夫婦で価値観が一致しており、

「平屋か2階建てか」で揉めることはありませんでした。

結果的に、自然な流れで平屋という選択になりました。

■結論:平屋にしてよかった

まず結論から言うと、

👉 平屋にしてよかったです。

これはもう、2年住んでみて揺るぎない感想です。

ただし、当然ながらデメリットもありました。

実際に暮らしてみて感じたリアルな部分を、正直に書いていきます。

■デメリット①:音問題はゼロではない

一番気になると言われるのが「音問題」です。

我が家は平屋のメリットを活かすために、

廊下をほとんど作らず、

• リビングを中心に

• 寝室

• お風呂

• トイレ

• クローゼット

これらがすべて隣接する間取りにしています。

では実際どうかというと、

👉 音は普通に聞こえます。

例えば、

• リビングでの食器洗い

• 家事の音

こういった生活音は寝室にも届きます。

ただ、

👉 気になるかと言われると、全く気になりません。

生活に支障が出たり、後悔するレベルではなく、

「聞こえるけど問題ない」という感覚です。

ただしこれは、

👉 完全に個人差があると思います。

また、我が家は夜遅くまで騒ぐような生活ではないので問題ありませんが、

生活スタイルによっては気になる人もいると思います。

これはこれから平屋を検討する方への一つのアドバイスですが、

👉 リビングでの生活スタイルは重要です。

例えば、

・人を呼んでよく飲み会をする

・夜遅くまでリビングで過ごすことが多い

こういった生活スタイルであれば、

👉 リビングと寝室の間に廊下を挟む

といった工夫はあった方がいいかもしれません。

ちなみに我が家は住友林業の家ということもあり、

扉自体の作りはしっかりしていると思います。

一般的には、

👉 引き戸よりも開き戸の方が防音性は高い

と言われていますが、

実際に住んでみて感じたのは、

👉 引き戸でも「2枚挟む」とかなり音は遮られる

ということです。

例えば、

夜中に洗濯機を回していても、

寝室との距離は近いですが、

👉 引き戸を2枚挟むと、ほとんど音は聞こえません。

こういった細かい体感は、住んでみて初めて分かりました。

■デメリット②:思ったより価格が高い

これは正直、盲点でした。。

もともと私は、

👉「平屋=安い」

というイメージを持っていました。

ただ実際は、

👉 同じ広さを確保しようとすると、平屋の方が高くなるケースが多いです。

理由としては、

• 基礎の面積が広くなる

• 屋根の面積も広くなる

👉 この2つのコストが大きくなるためです。

我が家の場合、もともと住友林業ということもあり、

価格が高いと感じていたところに

さらに、

👉「平屋の方が高くなる」

という事実を知ったときは、

正直、

👉「ちょっと損した気分」

にはなりました。

ただ、それでも最終的には、

👉 平屋の魅力の方が大きかった

2階建てと迷うことはありませんでした。

■メリット①:子育てとの相性が抜群

一方で、平屋の一番のメリットはここだと感じています。

👉 子育てとの相性がとにかく良い

我が家の間取りは、

• リビングを中心に

• 寝室

• お風呂

• クローゼット

生活のすべてが近い位置にあります。

そのため、

• 料理をしながら

• 家事をしながら

👉 常に子どもが目の届く範囲にいる

例えば、

• 寝ている

• 遊んでいる

• お風呂に入っている

どの状態でもすぐに確認できる。

👉 これは小さい子どもを育てる上で、かなり大きなメリットだと感じています。

■デメリット③:子どもは「2階」に憧れる

これも盲点でした。

現在4歳の上の子ですが、

• 「2階がほしい」

• 「なんでうちは2階ないの?」

といったことを言うようになってきました。

大人目線では平屋のメリットは大きく快適な生活だと感じていますが、

👉 子どもにとっては「2階=楽しい場所」

という感覚。考えてみれば私も子供だったら2階が欲しいと思うよなぁと今更ながら感じます笑

■平屋にするなら意識したいポイント

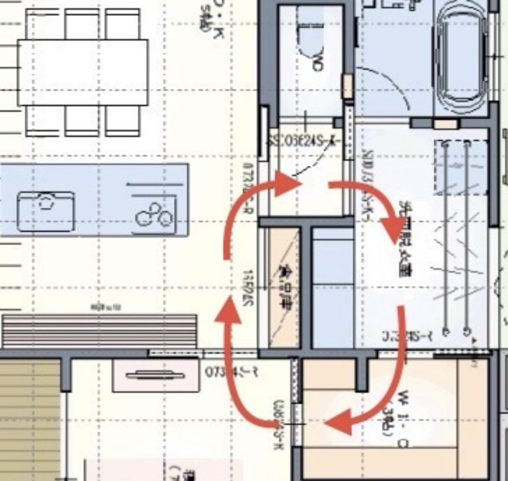
平屋にする上で、我が家が特に意識したのはこの2つです。

・回遊動線をつくる

せっかくの平屋なので、

👉 家の中をぐるっと回れる動線

を意識しました。

これだけで生活のしやすさがかなり変わります。

・子ども中心の配置

• キッチンから見える位置に子ども

• どこにいてもすぐ行ける距離

👉 「目が届く」ことを最優先に設計

これが結果的に、今の暮らしやすさにつながっています。

■最後に

平屋は、

👉 音は多少聞こえる

👉 価格は思ったより高い

👉 子どもは2階に憧れる

といったデメリットはあります。

それでも、

👉 子育てのしやすさという意味では圧倒的にメリットが大きい

2年住んだ今でも、

👉 「平屋にしてよかった」

そうはっきり言える選択です。

子育てを見据えた家づくりを考えている方にとって、少しでも参考になれば嬉しいです。

-育児パパ